城市规划设计系第三届“我爱我设计”大赛规程
一、大赛目的及意义:
为了展示近年来公司职业教育改革与发展的辉煌成就,深化公司公司产品改革,提高公司产品质量,加强建筑设计教学在学院内的相互交流,展示公司建筑室内设计专业的员工在室内设计、手绘效果图制作、计算机绘图软件操作等方面高超技能及良好的精神风貌,特制定本次大赛的实施方案。本项目主要是检测员工对室内设计原理的理解与运用能力、居住空间的设计能力以及对室内装饰基本材料的运用能力、彩色协调能力等。
二、竞赛内容
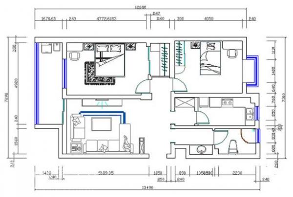
本项目为二居室空间的室内设计(后附户型图)。用马克笔、彩铅或计算机辅助软件绘制。本项目以国家职业标准的要求为基础,竞赛内容依据国家职业标准所规定应知、应会等要求。
员工技能主要考察:在正确理解图纸基础上,合理使用绘图工具或计算机辅助工具完成设计类的命题要求,根据使用计算机辅助软件Auto CAD准确划分空间,合理安排空间功能;设计尺度符合人体工程学要求;3DMAX完成电脑室内效果图的制作;要求绘制的电脑效果图画面完整,透视准确,布局合理,材料得当,照明科学,画面整洁。
三、组织机构:
主办单位:石家庄城市职业学院城市规划设计系
四、参赛对象:
10级建筑设计技术专业员工
五、参赛作品要求:
1、每小组提交的成果为一张2号图纸,所有的图必须在一张2号图纸中布局;
2、A2版面上以展板的形式体现,排版合理美观,建议所有图手绘,也可以是电脑辅助设计,打印出图。
3、要求的图纸有:
(1)效果图:2张(表现卧室和客厅)。
(2)平面布置图,1张;注明各房间、各工作区和功能区名称;有高差变化时须注明标高:应布置家具、地面铺砖及设备。
(3)顶棚布置图,1张;注明各顶棚标高、尺寸及材料;布置灯具及设备。
(4)主要立面图,1张;要体现特色、装饰艺术,注明尺寸及材料做法。
(5)必要的剖面图和详图。(以上制图规范图标、图例、线型、图框、比例等,请参照指导书附件《建筑装饰装修制图标准》)
(6)设计说明:工程概况,设计思路和理念、风格等。
注意:以上图纸不一定所有都画,可以根据各小组设计情况酌情选择,但要求布局美观,体现特色和亮点。
六、报名说明:
本次大赛只接受班级提交的小组报名,不接受个人报名。小组成员3—5人,要求起好小组的队名,每班不少于8组,由各班班长集体报名,报名地址:城市规划设计系主任助理办公室,报名时间:4月25日之前。
七、 赛程设置:
1.预赛阶段:4月25日—5月7日。
2.初审阶段:5月8日-5月10日。
3.网上公示阶段:5月11日-5月17日。
4.复赛及颁奖阶段:5月18日
八、评选原则:
1、设计作品的专业性:符合制图标准、标注和说明精确、效果图透视角度准确,符合现行家装工程和建筑工程的技术与安全规范;
2、本次大赛为原创作品比赛,参赛设计师必须遵守法纪,尊重他人的知识产权,在设计中独立创新,不得抄袭或剽窃他人设计成果;
3、注重实用功能的合理性,强调人性化设计,创造实用、舒适、安全的生活环境,对空间的改造有创意,功能性设计有创新,材料或工艺使用以及装饰手法有创造;在满足专业性的前提下,体现设计师或客户的个性要求;
4、设计作品具有鲜明的风格主题,充分发挥想象力和创造力,作品注重室内设计的创新,提倡个性化的设计思想,体现多元化的设计理念,娴熟运用设计手法;
5、要求作品能够表现出健康、安全的室内空间,传达绿色环保低碳的设计理念,提供节约资源型设计。
九、奖项设置:
1.一等奖 1名
2.二等奖 3名
3.三等奖 5名
4.优秀奖 7名
5.最具创意奖 1名(可重复得奖)
6.最佳表现奖 1名(可重复得奖)
附户型图(附两个户型图,各小组二选一进行设计):

