员工姓名:程慧
班级:13级建筑设计技术4班
实习单位:弘宇建筑设计有限公司
“吃得苦中苦,方为人上人”。通过这次实习,我认识到,大学是一个小社会,步入大学就等于步入半个社会。我们不再是温室里的花朵,通过社会实习的磨练,我深深地认识到社会实习是一笔财富。社会是一所更能锻炼人的综合性大学,只有正确的引导我们深入社会,了解社会,服务于社会,投身到社会实习中去,才能使我们发现自身的不足,为今后走出校门,踏进社会创造良好的条件;才能使我们学有所用,在实习中成才,在服务中成长,并有效的为社会服务,体现老员工的自身价值。今后的工作中,是在过去社会实习活动经验的基础上,不断拓展社会实习活动范围,挖掘实习活动培养人才的潜力,坚持社会实习与了解国情,服务社会相结合,为国家与社会的全面发展出谋划策。坚持社会实习与专业特点相结合。
“业精于勤荒于嬉,行成于思毁于随。”在实习过程中,我还认识到对于我自身一个很重要的地方,那就是在实际工作中不一定有太多地方用到专业知识,更多的是我们要耐心、细心一步一个脚印、脚踏实际的去工作,只有基本工作做的够好,才能赢得上级和同事的信赖,才有机会展示更多的才华。单凭专业知识不可能在工作上高枕无忧,更多还是需要脚踏实地做一些细微之事,而判断一个人的工作能力怎样恰恰是从一些小事上反映出来的,正可谓:一屋不扫何以扫天下?
我所学的专业是建筑设计技术,所以这次也是在一家和我专业相关的设计院实习,在实习过程中,我非常感谢和庆幸有公司前辈们和同事们的指导与帮助。公司的前辈们都很负责,在刚开始实习的时候,由于我们是刚实际接触这个行业的具体工作,前辈们为了了解和锻炼我们的具体能力,最开始是让我们临摹了一份完整的建筑图,另一方面,也是为了让我们系统详细的了解一份完整的工作从开始,过程,到结束,都有哪些具体的成分包含在里面。在之后的实践工作中,会让我们逐步的参与到具体的实际工作中去。并且在整个过程中,会很负责任并且耐心的指导我们工作中出现的问题,告诉我们其他方面一些宝贵的信息,比如:制图过程中一些具体的更好的制图规范;图集的重要性;不同区域的相关行情;等等......零零碎碎的都是一些很细小的部分,但正是这些细节,让我们感受到,前辈师傅们是在真正的教我们东西,诚心的为我们着想,希望我们可以有个更好的发展,而且这些细节不仅体现在工作中,还体现在我们生活中的很多细节,所以真的很感谢公司的各位师傅前辈和同事们。
下面,我把我在具体的实习工作中所做的一些具体工作和业绩成果做一个系统的整理与介绍。
一、平山圣源纺织有限公司职工家属楼施工图的辅助设计
前面提到,最开始公司的师傅为了让我们系统的了解和认识这个行业完成一套完整的施工图需要的具体内容,所以选择让我们临摹了一套完整的建筑施工图。下面是一些具体内容的图片展示。
通过对平山圣源纺织有限公司职工家属楼施工图的平立面进行临摹,掌握了更多关于涉及到具体施工中设计的具体构件的尺寸规格。例如:空调板的挑出长度,空调孔的尺寸,设备洞的尺寸与最佳安放位置。散水的常规布置宽度,窗户的不同尺寸(设亮子与不设亮子)…


通过对平山圣源纺织有限公司职工家属楼施工图的剖详面进行辅助设计,掌握了更多关于涉及到具体施工中设计的具体构件的尺寸规格以及一些制图规范。例如:女儿墙的设置高度(上人600+,不上人450+)、雨棚的挑出长度、做法层的绘制(保温层厚度的选取等等)......
在制图过程中,培养了与同事的协同合作能力与沟通能力,同时也锻炼自己的交际能力。



指导老师在其中起到了很重要的作用,自己了解到了尤其是一些比较专业与目前建筑行业行情的知识与动态。
二、承德茅荆坝大门的设计
此次参与的是一个实际的项目,我负责的是其中一部分大门的设计。下面是具体的成果展示。

通过平面的设计,我深刻的体会到建筑学是一个杂学科,要想学好建筑学,就必须要了解多方面的知识,例如:园林、农学、数学等等......强化了对图集的理解与记忆。


通过立面,剖面详图的设计,我深刻的体会到一个建筑要想建好,光靠美学是行不通的,更要调节好美与结构等方面的关系。只有这样,才能建造一个好的建筑;深化了对材料的理解;强化了对图集的理解与记忆。
认识到了一个项目的完成不仅需要个人单方面的努力,更要学会调节好和同事,合作伙伴之间的关系,这样才能确保一个项目的顺利完成,也能很好的提高工作效率,培养自得的团队协作精神。
三、一T多户套型设计
住宅小区是作为人们居住使用的主要生活空间,所以这次给我们布置的是一T多户套型的设计。
1、一T三户套型的设计


通过这次设计,我更加详细系统的了解到了一T三户户型的设计,怎样更好的分布一T三户。包括:各个功能分区的合理分布与布置(各自的尺寸、摆放位置与朝向);各个功能分区的最小尺寸、适宜尺寸与豪华尺寸;一个功能分区的开间与进深设计;家具的摆放、楼梯电梯的设置与布置等等......
2、一T四户套型设计


通过这次设计,我更加详细系统的了解到了一T四户户型的设计,怎样更好的分布一T四户。包括:各个功能分区的合理分布与布置(各自的尺寸、摆放位置与朝向);各个功能分区的最小尺寸、适宜尺寸与豪华尺寸;一个功能分区的开间与进深设计;家具的摆放、楼梯电梯的设置与布置;家具的摆放位置与顺序等等......
指导教师的指导与建议对自己的工作与学习起到了很大的作用。
学会更好的处理好工作、学习和生活的关系,有一个好的身体是有一个好的学习状态的工作成果的前提。
四、临城商住楼施工图立面设计

这次的设计是有三个人分工合作完成的,我负责的是立面设计。下面是成果展示。

从这次的设计中,我更加系统的学习到一组施工图的出图包括图纸目录,设计总说明,建筑施工图(总平面图、平面图、立面图、剖面图和构造详图),结构施工图,建筑装修施工图,设备施工图(包括给水排水、采暖通风、电气等设备的平面布置图和详图)。

这次主要负责立面的设计。所以就会涉及到很多窗户的绘制,在窗户绘制中,从指导教师的教导中,我学习到了窗户的具体绘制方法(具体的窗框、亮子尺寸,立面的线型表等等,另外也强化了对图集的认识。)
由于这次是几个人负责施工图的整体设计,所以就涉及到几个人之间的协调对应关系,只有几个人之前协调对应好,这套施工图才能是一套完整正确的施工图。认识到了一个项目的完成不仅需要个人单方面的努力,更要学会调节好和同事,合作伙伴之间的关系,这样才能确保一个项目的顺利完成,也能很好的提高工作效率,培养自己的团队协作精神。
五、小学设计
小学作为一种特殊的公共建筑,我们也对其进行了练习与设计。下面是成果展示。




通过这次设计,我详细系统地了解了对于小学这种公建有专门的图集与规范,而且小学相对于普通的公建的要求是不一样的。
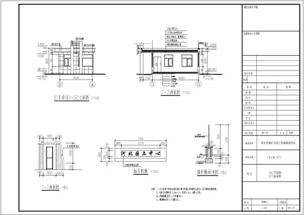
六、河北国土大门设计
这次的大门设计是一个实际项目,在通过与甲方的交流沟通,师傅的指导操作与自己的设计中,完成了本次项目,下面是成果展示。


通过这次项目,我更加深刻系统地了解了此行业的相关信息,例如外墙面材料的选用与尺寸的分隔、内墙面的制作工艺,屋面做法等等更细节的知识,深化了对图集和规范的认识,另外还有对目前一些建筑行业材料的初步了解。
在通过与甲方的沟通中也锻炼了自己的交际与语言能力。

认识到了一个项目的完成不仅需要个人单方面的努力,更要学会调节好和同事,合作伙伴之间的关系,这样才能确保一个项目的顺利完成。
以上就是我实习期间一些主要的成果展示,通过这些项目的设计,我学习到了很多不管是专业上还是工作上都受益匪浅的知识,不仅熟悉了软件的操作,而且也掌握了很多关于专业的知识。这将是我人生中一笔很宝贵的财富,而这些的获得离不开老师,师傅与同事的教导与帮助。他们是我人生中的良师益友。
这次实习使我懂得了要创造良好的工作业绩,除了有基本的理论知识,有一定的工作技能之外,还要有良好的工作心态。那就是面对挫折不悲观,不动摇。善于化压力为动力,以阳光心态面对未来。以锲而不舍的精神,以饱满的工作激情去取得良好的工作成效。通过实习的一个多月里,我深感自己的不足,我会在以后的工作学习中更加努力,取长补短,需心求教。相信自己会在以后的工作中更加得心应手,表现更加出色!不管是在什么地方任职,都会努力!加油!!!